» Maximum glazing thickness
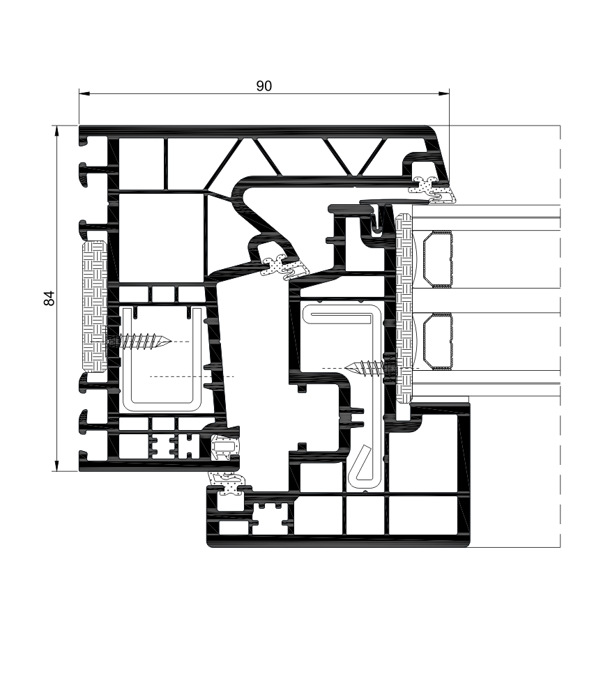
A 84 Hidden sash Passivhaus – 46.5 mm
» Opening possibilities
Inwards: Side hung, turn&tilt, tilt&slide and bottom hung.
» Sections
Frame 84 mm
Sash 84 mm
» Maximum dimensions/sash
Width (L) = 400-1400 mm
Height (H) = 450-2500 mm
» Maximum weight/sash
130 kg Window / Balcony
Please consult regarding maximum
weight and dimensions according to types.