COR 80 Industrial

All about the product
Description
Specifications
COR 80 Industrial
COR 80 Industrial
COR 80 Industrial
COR 80 Industrial

Available on backorder

Description

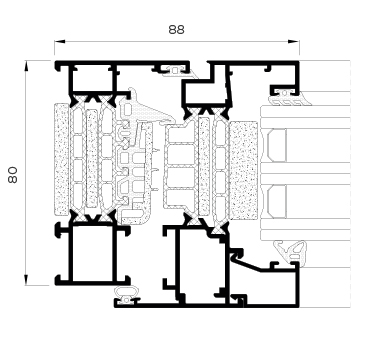
With a 80 mm frame depth, the COR 80 Industrial series responds to the most severe climatic requirements thanks to its thermal break with 45 mm tubular polyamide strips and the incorporation of polyolefin both around the glass and between the frame and sash.


Possibilities
» Security hardware
» Concealed hinges
» Concealed drainage
» Blind integrated glazing bead

Specifications

» Glazing
Max. 73 mm
Min. 16 mm

» Opening possibilities

Inward opening

Side hung

Tilt & turn

Parallel Sliding

Tilt only

Outward opening
Side hung
Top hung

» Sightlines
Frame 80 mm
Sash 88 mm

» Profile thickness
Window 1.5 mm
Balcony 1.6 mm

» Polyamide strip length
45 mm

» Maximum sash dimensions
Width (L) 1,500 mm
Height (H) 2,600 mm

» Maximum sash weight
160 kg

» Aesthetic possibilities
Sash: Straight / Bead: Straight or curved

Consult maximum weight and dimensions according to typologies.

» Finishes
Possibility of dual colour systems
Colour powder coating (RAL, mottled and rough)
Wood effect powder coating
Anti-bacterial powder coating
Anodised