Millennium FR Door

All about the product
Description
Specifications
Millennium FR Door
Millennium FR Door
Millennium FR Door
Millennium FR Door

Available on backorder

Description

» Fire resistance category EI60


Specifications

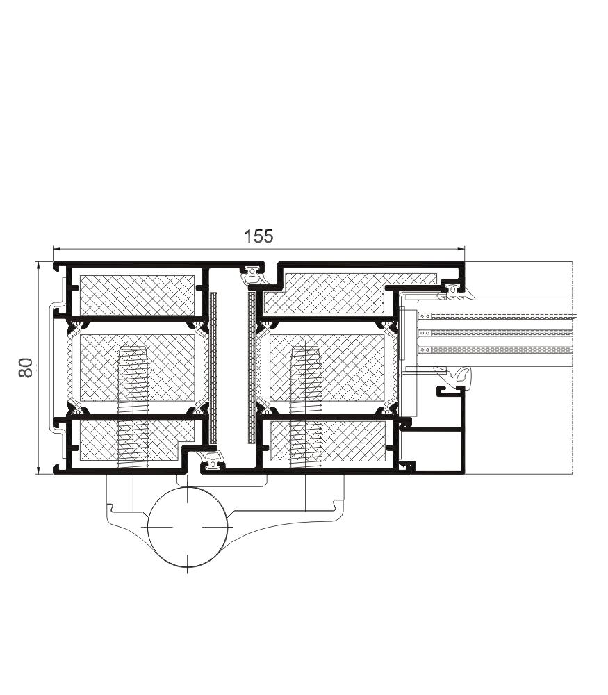
» Maximum glazing

48 mm

» Opening possibilities

Open Inwards:

Side hung 1 or 2 sashes  

Open Out:

Side hung 1 or 2 sashes  

» Secions

Frame – 80 mm / Sash – 80 mm

» Profile thickness

Door 2.2 mm

» Polyamide strip length

35 mm

» Maximum dimensions/sash

Width  (L) = 1450 mm
Height (H) = 2600 mm

» Maximum weight/sash

240 kg

Please consult regarding maximum weight and dimensions according to types

» Finishes

Possibility of dual colour systems
Colour powder coating (RAL, mottled and rough)
Wood effect powder coating
Anti-bacterial powder coating
Anodised