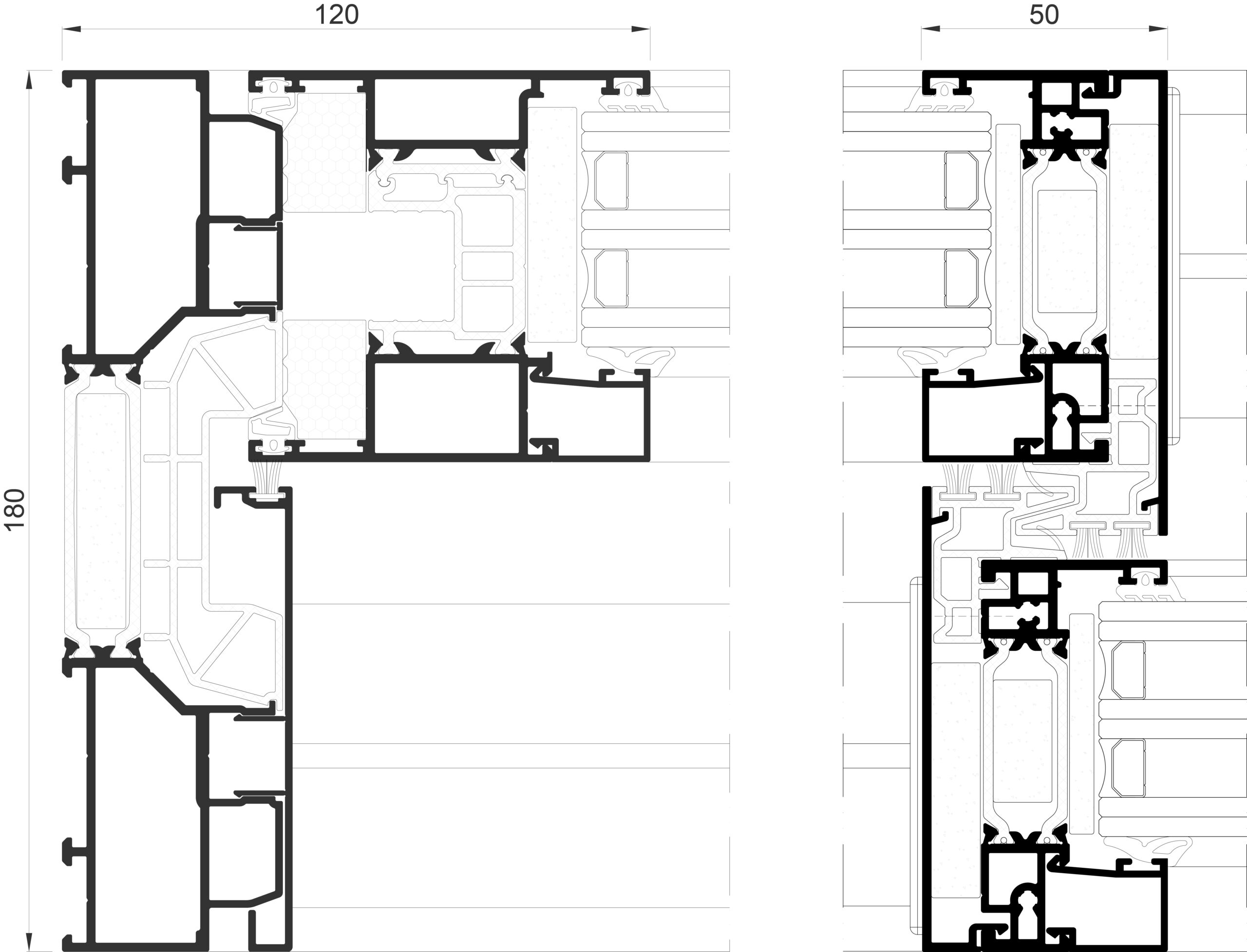
The new 4600 Plus Lift&Slide from Cortizo allows for the covering of large openings while ensuring exceptional thermal insulation. Its 80 mm deep sashes and special polyamides allow it to achieve a Uw transmittance of just 0,66 W/m?K, establishing itself as one of the sliding systems with the best thermal performance on the market.
Furthermore, the perimeter interlock profile is reduced to 120 mm, allowing for an increased glazed surface and enhancing the entry of natural light into the rooms.